для грамотного
и качественного ремонта
в квартире

Разрабатываем технические дизайн-проекты в Симферополе

для грамотного
и качественного ремонта
в квартире
Разрабатываем технические дизайн-проекты в Симферополе
варианта
рабочих
дней
меньше времени
дешевле
этапа
чертежей
3
50%
60%
3
30
20
перепланировки
квартиры с 3D
проходкой в интерьере
на разработку дизайн-проекта
по сравнению со стандартными дизайн-проектами
разработки чертежей
с отдельной оплатой каждого
на разработку
со всеми согласованиями
для строителей
до
на
на
*
варианта
рабочих
дней
меньше времени
дешевле
этапа
чертежей
3
50%
60%
3
30
20
перепланировки квартиры с 3D проходкой в интерьере
на разработку дизайн-проекта
по сравнению со стандартными дизайн-проектами
разработки чертежей
с отдельной оплатой каждого
на разработку
со всеми согласованиями
для строителей
до
на
на
*
Мы занимаемся
ремонтом и отделкой квартир в Симферополе уже 10 лет
По нашему опыту,
больше, чем половине наших клиентов
не требовался сложный
авторский дизайн жилья
Мы занимаемся
ремонтом и отделкой квартир
в Симферополе
уже 10 лет
По нашему опыту,
больше, чем половине наших клиентов
не требовался сложный
авторский дизайн жилья
Но абсолютно все сталкивались
с техническими вопросами..
ЧТО МОЖНО ДЕМОНТИРОВАТЬ?
ЧТО МОЖНО ДЕМОНТИРОВАТЬ?
ЧТО МОЖНО ДЕМОНТИРОВАТЬ?
ЧТО МОЖНО ДЕМОНТИРОВАТЬ?
КАК РАССТАВИТЬ МЕБЕЛЬ?
КАК РАССТАВИТЬ МЕБЕЛЬ?
КАК РАССТАВИТЬ МЕБЕЛЬ?
КАК РАССТАВИТЬ МЕБЕЛЬ?
КУДА УСТАНОВИТЬ РОЗЕТКИ?
КУДА УСТАНОВИТЬ РОЗЕТКИ?
КУДА УСТАНОВИТЬ РОЗЕТКИ?
КУДА УСТАНОВИТЬ РОЗЕТКИ?
ГДЕ БУДЕТ ТЕПЛЫЙ ПОЛ?
ГДЕ БУДЕТ ТЕПЛЫЙ ПОЛ?
ГДЕ БУДЕТ ТЕПЛЫЙ ПОЛ?
ГДЕ БУДЕТ ТЕПЛЫЙ ПОЛ?
КАК РАЗЛОЖИТЬ ПЛИТКУ?
КАК РАЗЛОЖИТЬ ПЛИТКУ?
КАК РАЗЛОЖИТЬ ПЛИТКУ?
КАК РАЗЛОЖИТЬ ПЛИТКУ?
КАК РАССТАВИТЬ ОСВЕЩЕНИЕ?
КАК РАССТАВИТЬ ОСВЕЩЕНИЕ?
КАК РАССТАВИТЬ ОСВЕЩЕНИЕ?
КАК РАССТАВИТЬ ОСВЕЩЕНИЕ?
КАК ОБЪЯСНИТЬ ВСЕ МАСТЕРУ?
КАК ОБЪЯСНИТЬ ВСЕ МАСТЕРУ?
КАК ОБЪЯСНИТЬ ВСЕ МАСТЕРУ?
КАК ОБЪЯСНИТЬ ВСЕ МАСТЕРУ?
КУДА УСТАНОВИТЬ РОЗЕТКИ?
КУДА УСТАНОВИТЬ РОЗЕТКИ?
КУДА УСТАНОВИТЬ РОЗЕТКИ?
КУДА УСТАНОВИТЬ РОЗЕТКИ?
КАК РАССТАВИТЬ МЕБЕЛЬ?
КАК РАССТАВИТЬ МЕБЕЛЬ?
КАК РАССТАВИТЬ МЕБЕЛЬ?
КАК РАССТАВИТЬ МЕБЕЛЬ?
ГДЕ БУДЕТ ТЕПЛЫЙ ПОЛ?
ГДЕ БУДЕТ ТЕПЛЫЙ ПОЛ?
ГДЕ БУДЕТ ТЕПЛЫЙ ПОЛ?
ГДЕ БУДЕТ ТЕПЛЫЙ ПОЛ?
КАК РАССТАВИТЬ ОСВЕЩЕНИЕ?
КАК РАССТАВИТЬ ОСВЕЩЕНИЕ?
КАК РАССТАВИТЬ ОСВЕЩЕНИЕ?
КАК РАССТАВИТЬ ОСВЕЩЕНИЕ?
ЧТО МОЖНО ДЕМОНТИРОВАТЬ?
ЧТО МОЖНО ДЕМОНТИРОВАТЬ?
ЧТО МОЖНО ДЕМОНТИРОВАТЬ?
ЧТО МОЖНО ДЕМОНТИРОВАТЬ?
КАК РАЗЛОЖИТЬ ПЛИТКУ?
КАК РАЗЛОЖИТЬ ПЛИТКУ?
КАК РАЗЛОЖИТЬ ПЛИТКУ?
КАК РАЗЛОЖИТЬ ПЛИТКУ?
ГДЕ КУПИТЬ МАТЕРИАЛЫ?
ГДЕ КУПИТЬ МАТЕРИАЛЫ?
ГДЕ КУПИТЬ МАТЕРИАЛЫ?
ГДЕ КУПИТЬ МАТЕРИАЛЫ?
КАК РАССТАВИТЬ САНТЕХНИКУ?
КАК РАССТАВИТЬ САНТЕХНИКУ?
КАК РАССТАВИТЬ САНТЕХНИКУ?
КАК РАССТАВИТЬ САНТЕХНИКУ?
Но абсолютно все сталкивались
с техническими вопросами..
КАК ОБЪЯСНИТЬ ВСЕ МАСТЕРУ?
КАК ОБЪЯСНИТЬ ВСЕ МАСТЕРУ?
КАК ОБЪЯСНИТЬ ВСЕ МАСТЕРУ?
КАК ОБЪЯСНИТЬ ВСЕ МАСТЕРУ?
дизайнеры интерьера Симферополь
дизайн-проект Симферополь
дизайнеры интерьера Симферополь
В обязанности мастера не входит знать,
куда установить те или иные элементы.

Его обязанность —
квалифицированно выполнить монтаж
в соответствии с техническим заданием.
Технический дизайн-проект -
это необходимый посредник
для взаимодействия со строителями
и залог успешного ремонта.
технический дизайн Симферополь
В обязанности мастера не входит знать,
куда установить те или иные элементы.

Его обязанность —
квалифицированно выполнить монтаж
в соответствии с техническим заданием.
Технический дизайн-проект -
это необходимый посредник
для взаимодействия
со строителями
и залог успешного ремонта.
чертежи проекта квартиры
заказать дизайн-проект
Что такое технический дизайн?
Технический дизайн-проект (ТД) —
это комплект чертежей для грамотной реализации ремонта в квартире.
В состав ТД входит такой же полный комплект чертежей, как и в любой стандартный дизайн-проект, но не входят фотореалистичные визуализации интерьера. За счет такого подхода вы экономите половину времени и 60% от стоимости стандартного дизайн-проекта.
И даже эту сумму не нужно оплачивать полностью и сразу. Оплата разбивается на три этапа. Если что-то не понравилось — от следующего этапа можно отказаться.
Что такое технический дизайн?
Технический дизайн-проект -
это комплект чертежей
для грамотной реализации ремонта в квартире
И даже эту сумму не нужно оплачивать полностью и сразу. Оплата разбивается на три этапа. Если что-то не понравилось — от следующего этапа можно отказаться.
В состав ТД входит такой же полный комплект чертежей, как и в любой стандартный дизайн-проект, но не входят фотореалистичные визуализации интерьера. За счет такого подхода вы экономите половину времени и 60% от стоимости стандартного дизайн-проекта.
Что такое технический дизайн?
Технический дизайн-проект -
это комплект чертежей
для грамотной реализации ремонта в квартире
И даже эту сумму не нужно оплачивать полностью и сразу. Оплата разбивается на три этапа. Если что-то не понравилось — от следующего этапа можно отказаться.
В состав ТД входит
такой же полный
комплект чертежей,
как и в любой
стандартный
дизайн-проект, но
не входят
визуализации
интерьера и подбор материалов. За счет такого подхода вы экономите 60% от стоимости обычного дизайн-проекта.
Что такое технический дизайн?
Технический дизайн-проект -
это комплект чертежей
для грамотной реализации ремонта в квартире
И даже эту сумму не нужно оплачивать полностью и сразу. Оплата разбивается на три этапа. Если что-то не понравилось — от следующего этапа можно отказаться.
В состав ТД входит такой же полный комплект чертежей, как и в любой стандартный дизайн-проект, но не входят визуализации интерьера и подбор материалов. За счет такого подхода вы экономите 60% от стоимости обычного дизайн-проекта.
Что входит
в технический дизайн-проект
полный набор чертежей,
как и в стандартном дизайн-проекте
фотореалистичные визуализации интерьера
разработка стилистических коллажей
визуализация раскладки плитки в санузле
подбор конкретной мебели (но даем рекомендации и перечень проверенных салонов в Симферополе и России)
расчет количества необходимых отделочных материалов
с правильными запасами
авторский надзор
за производством работ
контакты наших проверенных партнеров по комплектации квартиры: кухням, мебели, шторам и др., с бонусами для вас
3 варианта перепланировки квартиры
согласование перепланировки в государственных инстанциях
выбор конкретных отделочных материалов (но даем рекомендации и перечень магазинов в Симферополе)
рекомендации по выбору отделочных материалов, сантехники, мебели
3D модель квартиры
с расстановкой мебели
3 видео-проходки в интерьере
поиск выбранных отделочных материалов, сантехники
по выгодной цене у наших
оптовых поставщиков
Что не входит
в технический дизайн-проект
Что входит
в технический дизайн-проект
полный набор чертежей, как и в стандартном дизайн-проекте
фотореалистичные визуализации интерьера
разработка стилистических коллажей
визуализация раскладки плитки в санузле
подбор конкретной мебели (но даем рекомендации и перечень проверенных салонов в Симферополе и России)
расчет количества необходимых отделочных материалов
с правильными запасами
авторский надзор
за производством работ
контакты наших проверенных партнеров по комплектации квартиры: кухням, мебели, шторам и др., с бонусами для вас
3 варианта перепланировки квартиры
согласование перепланировки в государственных инстанциях
выбор конкретных отделочных материалов (но даем рекомендации и перечень магазинов в Симферополе)
рекомендации по выбору отделочных материалов, сантехники, мебели
3D модель квартиры
с расстановкой мебели
3 видео-проходки в интерьере
поиск выбранных отделочных материалов, сантехники по выгодной цене у наших оптовых поставщиков
Что не входит
в технический дизайн-проект
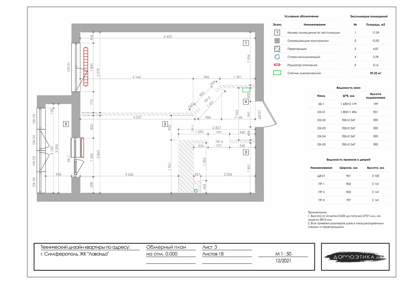
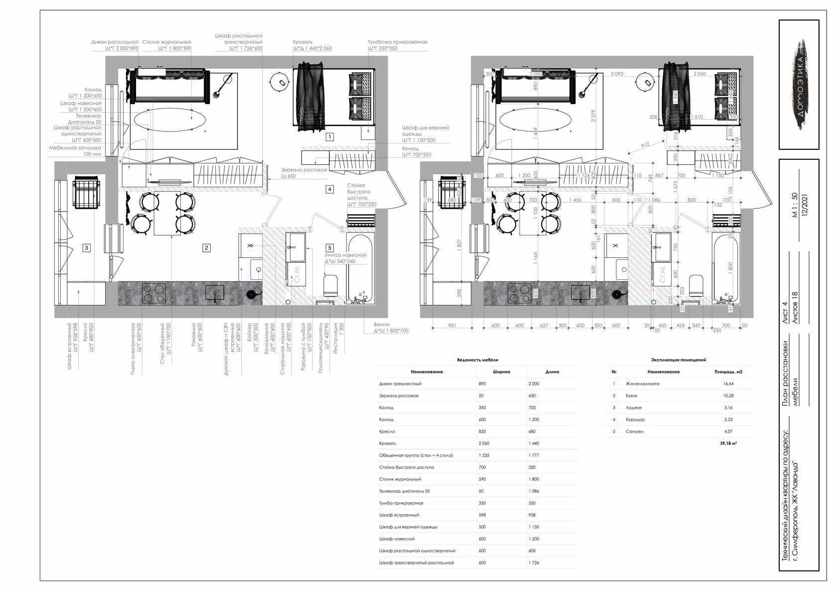
Пример
комплекта чертежей
Пример
комплекта чертежей
Стоимость
детальный замер помещения, бриф
3 варианта перепланировки
видео-проходка в интерьере
план демонтажа существующих конструкций
план монтажа перегородок и конструкций
план расстановки осветительных приборов
схема управления освещением
план
электрики
Поиск чистовых материалов
по минимальной цене у наших оптовых поставщиков
плиточные работы: 3D визуализация и раскладка плитки
план размещения санитарно-технического оборудования
развертки по стенам
квартиры
эскиз (ТЗ) кухни для кухонной компании
план маркировки дверных проемов
план теплых полов
план потолков
план напольных покрытий
пакет
пакет
пакет
650 руб/м2 (26 000 руб. для квартир менее 40 м2)
850 руб/м2 (34 000 руб. для квартир менее 40 м2)
1500 руб/м2 (60 000 руб. для квартир менее 40 м2)
«планировка»
«базовый»
«полный»
По статистике, среднее удорожание ремонта БЕЗ проекта относительно предварительной сметы - 23%.
итоговый план расстановки
мебели и оборудования
Технический дизайн стоит меньше 1% от суммы ремонта.
Стоимость
детальный замер помещения, бриф
3 варианта перепланировки
итоговый план расстановки
мебели и оборудования
видео-проходка в интерьере
план демонтажа существующих конструкций
план монтажа перегородок и конструкций
план расстановки осветительных приборов
схема управления освещением
план
электрики
поиск чистовых материалов
по минимальной цене у наших оптовых поставщиков
плиточные работы: 3D визуализация и раскладка плитки
план размещения санитарно-технического оборудования
развертки по стенам
квартиры
эскиз (ТЗ) кухни для кухонной компании
план маркировки дверных проемов
план теплых полов
план потолков
план напольных покрытий
пакет
пакет
пакет
650 руб/м2 (26 000 руб. для квартир менее 40 м2)
850 руб/м2 (34 000 руб. для квартир менее 40 м2)
1500 руб/м2 (60 000 руб. для квартир менее 40 м2)
«планировка»
«базовый»
«полный»
По статистике, среднее удорожание ремонта БЕЗ проекта относительно предварительной сметы - 23%.
Технический дизайн стоит меньше 1% от суммы ремонта.
Стоимость
детальный замер помещения, бриф
3 варианта перепланировки
итоговый план расстановки
мебели и оборудования
видео-проходка в интерьере
план демонтажа существующих конструкций
план монтажа перегородок и конструкций
план расстановки осветительных приборов
схема управления освещением
план
электрики
поиск чистовых материалов
по минимальной цене у наших оптовых поставщиков
плиточные работы: 3D визуализация и раскладка плитки
план размещения санитарно-технического оборудования
развертки по стенам
квартиры
эскиз (ТЗ) кухни для кухонной компании
план маркировки дверных проемов
план теплых полов
план потолков
план напольных покрытий
пакет
пакет
пакет
650 руб/м2 (26 000 руб. для квартир менее 40 м2)
850 руб/м2 (34 000 руб. для квартир менее 40 м2)
1500 руб/м2 (60 000 руб. для квартир менее 40 м2)
«планировка»
«базовый»
«полный»
По статистике, среднее удорожание ремонта БЕЗ проекта относительно предварительной сметы - 23%.
Технический дизайн стоит меньше 1% от суммы ремонта.
дипломированный инженер-строитель, магистр по специальности «Промышленное и гражданское строительство»,
с семилетним опытом работы в сфере ремонта квартир. Руковожу разработкой технических дизайн-проектов.
Привет! Я Мария Савицкая —
Мы постарались максимально упростить нашим заказчикам процесс разработки проекта, и создали Карту технического дизайна.
В ней подробно описан каждый шаг процесса, собраны ссылки на проверенные магазины, поставщиков, наших партнеров.
Все будет быстро, интересно и продуктивно =)
Мы запарились, чтобы вы расслабились
Проходила курсы повышения квалификации от ArchiCAD-Master, школы дизайна Детали (Москва), дизайнера Никиты Зуба (Санкт-Петербург).
Работала над перепланировками квартир и знаю практически все ЖК Симферополя.. да-да, и ваш тоже =)
Уважаю ваше время и комфорт
Раскрываю потенциал
пространства
Воплощаю ваши
идеи в интерьеры
Делаю это все
под хороший кофе
1
2
3
4
дипломированный инженер-строитель, магистр по специальности «Промышленное и гражданское строительство», с семилетним опытом работы в сфере ремонта квартир. Руковожу разработкой технических дизайн-проектов.
Привет! Я Мария Савицкая —
Мы постарались максимально упростить нашим заказчикам процесс разработки проекта, и создали Карту технического дизайна.
В ней подробно описан каждый шаг процесса, собраны ссылки на проверенные магазины, поставщиков, наших партнеров. Все будет быстро, интересно и продуктивно =)
Мы запарились, чтобы вы расслабились
Проходила курсы повышения квалификации от ArchiCAD-Master, школы дизайна Детали (Москва), дизайнера Никиты Зуба (Санкт-Петербург).
Работала над перепланировками квартир и знаю практически все ЖК Симферополя. да-да, и ваш тоже =)
Уважаю ваше время и комфорт
Раскрываю потенциал
пространства
Воплощаю ваши идеи в интерьеры
Делаю это все под хороший кофе
1
2
3
4
Приступим к первому этапу?
Оставьте ваши контакты, и мы с вами свяжемся
г. Симферополь,
ул. Севастопольская, 31
Компания «Домоэтика»
© ИП Савицкая Мария Андреевна
ИНН: 910222098943
ОГРНИП: 315910200406212