Декоративные рейки, фреска, и керамогранит в стиле "Пэчворк" - яркая и уютная квартира в ЖК "Жигулина Роща"
Готовый ремонт от Домоэтики в трехкомнатной квартире для семьи с двумя детьми. Продуманная эргономика, и зонирование без демонтажа в нашем новом проекте.
Ремонт трехкомнатной квартиры в ЖК "Жигулина Роща"
Объект: трехкомнатная квартира Адрес: г. Симферополь, ЖК "Жигулина Роща" Дизайн: Студия архитектуры и дизайна REMA Ремонтные работы: компания "Домоэтика" Управление проектом: Владимир Бобырь Фото: Юлия Брославская
К нам с заказом на ремонт обратилась семья с двумя детьми. Они приобрели трехкомнатную квартиру в ЖК "Жигулина Роща". Основные пожелания:
отдельные комнаты для сына и дочери, поскольку разница в возрасте большая
отдельная спальня для родителей
общая зона с диваном и телевизором
полноразмерные стиральная и сушильная машины
Все эти задачи решили без перепланировки, план расстановки мебели смотрите ниже♥
Обмерный план квартиры. Источник: дизайн-проект студии архитектуры и дизайна REMA
План расстановки мебели и оборудования из проекта студии архитектуры и дизайна REMA
Пошаговые изменения квартиры - от электротехнических работ до установки финишной фурнитуры и мебели.
Чтобы посмотреть процесс ремонта, листайте вправо >>
Электротехнические работы на объекте
Малярные работы
Покраска акцентной стены
Трафарет для покраски
Поклейка фрески на стену в детской
Коллекторный узел
Установка финишной фурнитуры и мебели
Самую просторную комнату площадью 26,5 м2 зонировали с помощью мебельной перегородки. Ближе к окну разместили двуспальную кровать родителей со спальным местом 1800*2100. Напротив шкаф для одежды в цвет стен без мебельной фурнитуры - сливается с пространством и не загромождает его. В глубине комнаты общая зона с угловым диваном и телевизором. Мы сдвинули дверной проем вправо, чтобы телевизионная тумба не оказалась на проходе.
ГОСТИНАЯ
ГОСТИНАЯ
Самую просторную комнату площадью 26,5 м2 зонировали с помощью мебельной перегородки. Ближе к окну разместили двуспальную кровать родителей со спальным местом 1800*2100. Напротив шкаф для одежды в цвет стен без мебельной фурнитуры - сливается с пространством и не загромождает его. В глубине комнаты общая зона с угловым диваном и телевизором. Мы сдвинули дверной проем вправо, чтобы телевизионная тумба не оказалась на проходе.
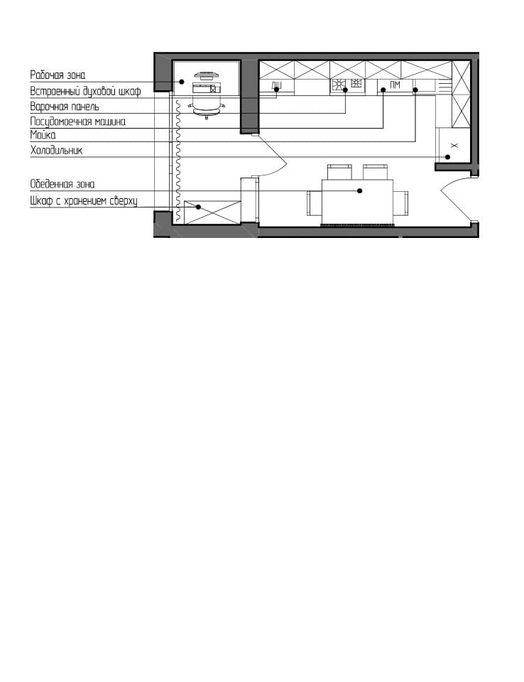
Площадь помещения 10 м2. Кухню сделали Г-образную, с верхними шкафчиками в два уровня. Холодильник отдельностоящий. Чтобы скрыть его торец, смонтировали гипсокартонную перегородку у входа. Обеденный стол 1200*800 мм, для четверых человек.
КУХНЯ
КУХНЯ Площадь помещения 10 м2. Кухню сделали Г-образную, с верхними шкафчиками в два уровня. Холодильник отдельностоящий. Чтобы скрыть его торец, смонтировали гипсокартонную перегородку у входа. Обеденный стол 1200*800 мм, для четверых человек.
Единственное помещение в квартире, планировка которого изменилась относительно проекта в процессе ремонта. Добавили столик для занятий у окна, а детская кровать переместилась ближе ко входу. Акцентную стену сделали с помощью красок и трафарета.
ДЕТСКАЯ ДЛЯ СЫНА
ДЕТСКАЯ ДЛЯ СЫНА
Единственное помещение в квартире, планировка которого изменилась относительно проекта в процессе ремонта. Добавили столик для занятий у окна, а детская кровать переместилась ближе ко входу. Акцентную стену сделали с помощью красок и трафарета.
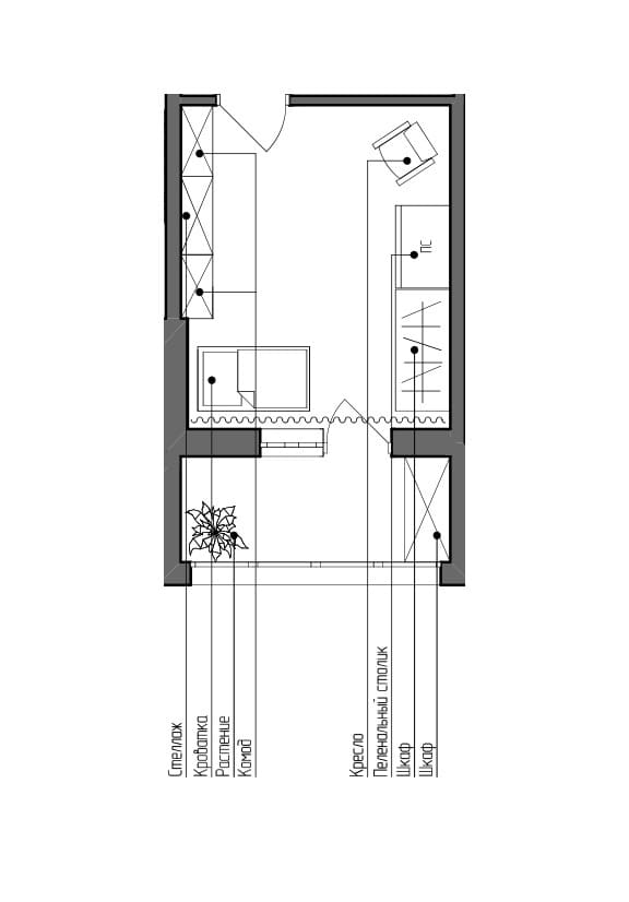
Самая видовая комната с двумя большими окнами стала детской для дочери. Здесь разместили рабочий стол, стеллаж и шкаф для хранения, спальное место с прикроватной тумбой, и подвесное кресло. Стена возле кровати декорирована фреской Affresco Dream Forest.
ДЕТСКАЯ ДЛЯ ДОЧЕРИ
ДЕТСКАЯ ДЛЯ ДОЧЕРИ
Самая видовая комната с двумя большими окнами стала детской для дочери. Здесь разместили рабочий стол, стеллаж и шкаф для хранения, спальное место с прикроватной тумбой, и подвесное кресло. Стена возле кровати декорирована фреской Affresco Dream Forest.
Поскольку в квартире проживает четыре человека, санузлы оставили раздельными. Ванна габаритами 1800*800 мм. За ней возвели строительную перегородку из влагостойкого гипсокартона, и облицевали ее керамогранитом. В образовавшейся нише встали стиральная и сушильная машины.
САНУЗЛЫ
САНУЗЛЫ Поскольку в квартире проживает четыре человека, санузлы оставили раздельными. Ванна габаритами 1800*800 мм. За ней возвели строительную перегородку из влагостойкого гипсокартона, и облицевали ее керамогранитом. В образовавшейся нише встали стиральная и сушильная машины.
КОРИДОР По одной стороне коридора разместили вместительный шкаф длиной 2.7 метра. В нем удачно спрятали строительный уступ на стене. На противоположной стороне пуф, в нем же хранение для обуви, стойка быстрого доступа и тумба для мелочей с зеркалом.
Несколько сравнений визуализации из дизайн-проекта и результата работы ниже:
Как вам этот проект?
Хотите, чтобы ваша квартира вызывала восхищение?
И к тому же была удобной и комфортной в жизни? У нас больше 500 реализованных проектов по ремонту, и мы точно знаем, как этого достичь. Давайте познакомимся и обсудим ваш проект
Нажимая на кнопку, вы даете согласие на обработку своих персональных данных и соглашаетесь с политикой конфиденциальности