НАШИ РАБОТЫ

Отделка двухэтажного дома в Симферополе - часть 2

Черпаем вдохновение из проекта с самыми актуальными решениями современного ремонта
Объект: двухэтажный дом
Этаж: второй
Адрес: г. Симферополь, ул. Братьев Айвазовских
Дизайн: Студия архитектуры и дизайна REMA
Ремонтные работы: компания "Домоэтика"
Управление проектом: Виталий Савичев
Фото: Степан Давыдов
Это продолжение истории о доме мечты в городе Симферополь. Начало смотрите в разделе портфолио - отделка двухэтажного дома, часть 1.
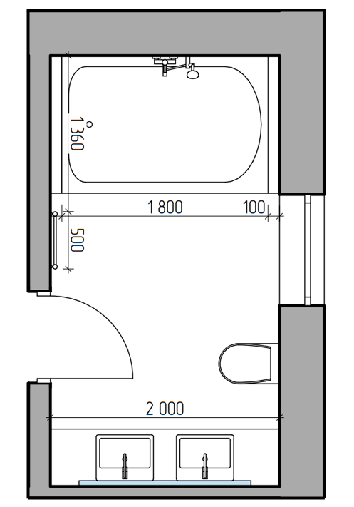
Второй этаж - приватный. Здесь эффектный даже коридор - с массажным креслом и окном в сад. Пространство разделено на три основных помещения: мастер-спальню с гардеробной, домашний кинотеатр, кабинет. Есть и просторная ванная комната: тут две отдельные раковины и ванна на двоих с гидромассажем.
Кинотеатр, к сожалению, еще не был готов к началу съемки, а все другие помещения посмотри ниже♥
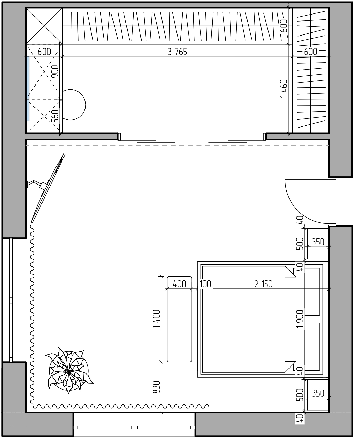
Обмерный план второго этажа дома, план расстановки мебели. Источник: дизайн-проект студии архитектуры и дизайна REMA
Несколько кадров о том, как создавался этот интерьер.

Чтобы посмотреть процесс ремонта, листайте вправо >>

МАСТЕР-СПАЛЬНЯ ВТОРОГО ЭТАЖА

Общая площадь помещения 32,5 м2, из них 10,2 м2 приходится на гардеробную.
Комната аскетична в плане мебели. А с двумя панорамными окнами в пол появляется ощущение настоящего простора.
Отопление здесь внутрипольное конвекторное.

дизайн-проект квартиры
МАСТЕР-СПАЛЬНЯ ВТОРОГО ЭТАЖА

Общая площадь помещения 32,5 м2, из них 10,2 м2 приходится на гардеробную.
Комната аскетична в плане мебели. А с двумя панорамными окнами в пол появляется ощущение настоящего простора.
Отопление здесь внутрипольное конвекторное.
Как мы реализовали
(сдвинь влево)
Как было задумано
(сдвинь вправо)

КАБИНЕТ ВТОРОГО ЭТАЖА

Добро пожаловать в мужской рай! Личная коллекция памятных вещей, профессиональное компьютерное кресло, диван для отдыха. Все это оформлено в темно-коричневых оттенках, а стабилизированный мох особенно ярко играет на этом фоне.

ремонт и отделка
КАБИНЕТ ВТОРОГО ЭТАЖА

Добро пожаловать в мужской рай! Личная коллекция памятных вещей, профессиональное компьютерное кресло, диван для отдыха. Все это оформлено в темно-коричневых оттенках, а стабилизированный мох особенно ярко играет на этом фоне.
Как мы реализовали
(сдвинь влево)
Как было задумано
(сдвинь вправо)

ВАННАЯ КОМНАТА ВТОРОГО ЭТАЖА

Помещение облицовано по стенам и полу одним и тем же наименованием керамогранита, Italon Шарм Эво Калакатта. Эффектным его делают светодиодная подсветка, и окрашенные декоративные рейки. Ими же закрыт и экран ванны.

ремонт и отделка
ВАННАЯ КОМНАТА ВТОРОГО ЭТАЖА

Помещение облицовано по стенам и полу одним и тем же наименованием керамогранита, Italon Шарм Эво Калакатта. Эффектным его делают светодиодная подсветка, и окрашенные декоративные рейки. Ими же закрыт и экран ванны.
Как мы реализовали
(сдвинь влево)
Как было задумано
(сдвинь вправо)
Павел Савицкий
Основатель компании Домоэтика
"Это проект-вызов. В нем достаточно много сложных примыканий, узлов, нестандартных дизайнерских решений. Зато он позволил нам показать наши возможности в полной мере =) и результат однозначно того стоит"
Павел Савицкий
Основатель компании Домоэтика
"Это проект-вызов. В нем достаточно много сложных примыканий, узлов, нестандартных дизайнерских решений. Зато он позволил нам показать наши возможности в полной мере =) и результат однозначно того стоит"
Как вам этот проект?
Хотите жить в доме вашей мечты?
Таком, как видите его именно вы: красивом, комфортном, уникальном?
У нас больше 500 реализованных проектов по ремонту,
и мы уверены, что можем создать для вас тот самый вариант.
Давайте познакомимся и обсудим ваш проект
Нажимая на кнопку, вы даете согласие на обработку своих персональных данных и соглашаетесь с политикой конфиденциальности
Другие примеры наших работ