НАШИ РАБОТЫ

Отделка двухэтажного дома в Симферополе - часть 1

Черпаем вдохновение из проекта с самыми актуальными решениями современного ремонта
Объект: двухэтажный дом
Этаж: первый
Адрес: г. Симферополь, ул. Братьев Айвазовских
Дизайн: Студия архитектуры и дизайна REMA
Ремонтные работы: компания "Домоэтика"
Управление проектом: Виталий Савичев
Фото: Степан Давыдов
Этот дом в тихом малоэтажном районе Симферополя владельцы приобрели уже готовым. Была возведена коробка дома, стояли окна и входная дверь.
Но, когда нас пригласили на внутреннюю отделку, мы не смогли сразу приступить к работе. Оказалось, что в строении, которое долго не эксплуатировалось, появился плесневый грибок. Так что начать пришлось с демонтажа пораженных гипсокартонных конструкций, и обработки поверхностей специальными составами.
За исключением этого досадного нюнса, дом оказался отличным, особенно с точки зрения зонирования. Перепланировки по проекту не было, все помещения остались изначальной конфигурации.
Общая итоговая площадь дома - 184,4 м2. На первом этаже расположена кухня-столовая с примыкающей гостиной, спальня, санузел, и просторный холл. Второй этаж отдан под спальню с гардеробной, детскую, кабинет и ванную.
Предлагаем теперь посмотреть поближе комнаты на первом этаже этого дома-мечты♥
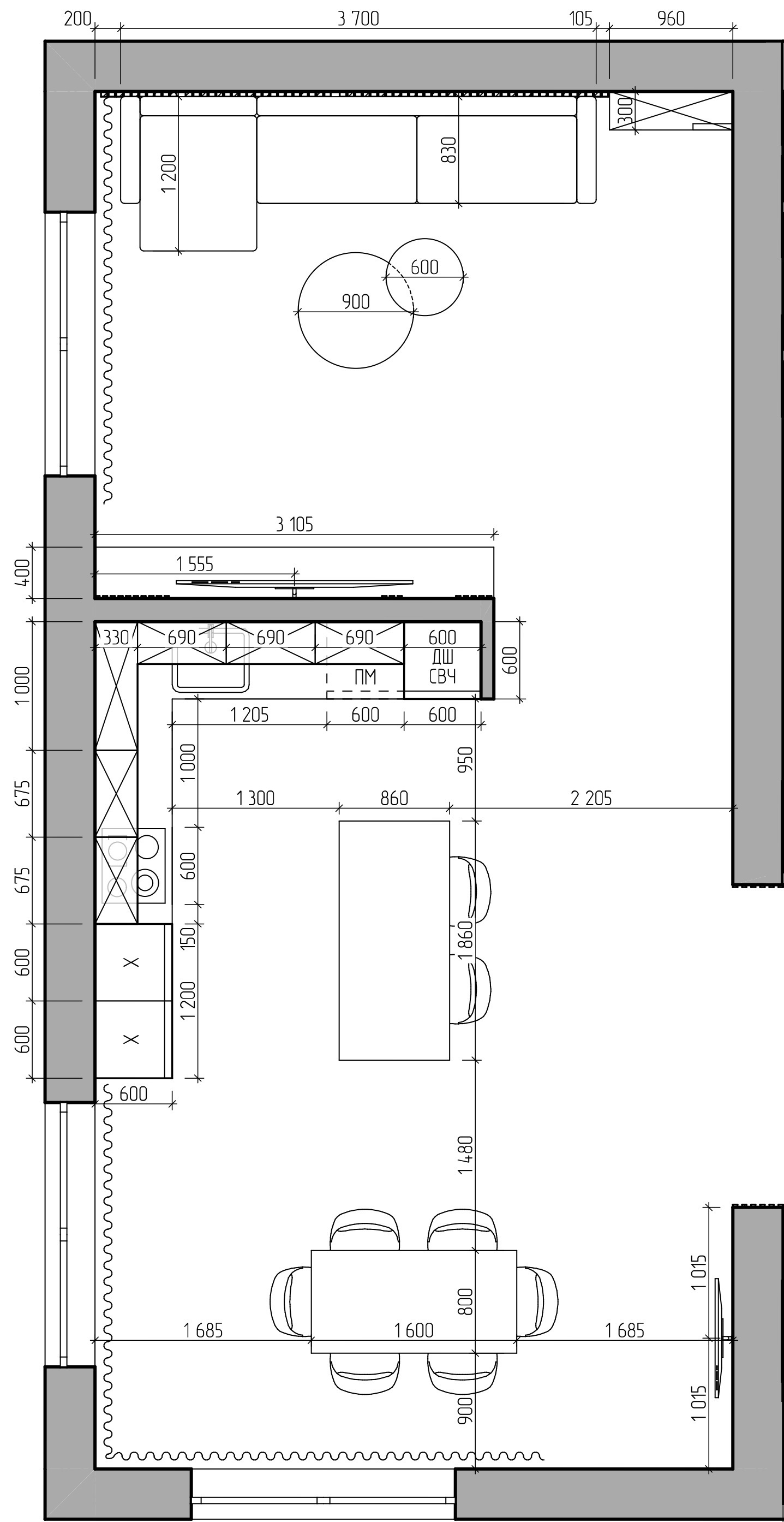
Обмерный план первого этажа дома, план расстановки мебели. Источник: дизайн-проект студии архитектуры и дизайна REMA
Несколько кадров о том, как создавался этот интерьер.

Чтобы посмотреть процесс ремонта, листайте вправо >>
ГОСТИНАЯ И КУХНЯ-СТОЛОВАЯ

Площадь этих двух смежных помещений впечатляющая - 33 м2.
При входе расположена Г-образная кухня с островом. В острове техники нет, с одной стороны шкафы для хранения, с другой - барная стойка. В столешницу острова интегрированы розетки.
Ближе к окнам разместили столовую зону на восемь персон, с телевизором.
Зона гостиной выглядит особенно приватно и уютно за счет перегородки, отделяющей пространство кухни. Здесь диван длиной 3.7 м., и телевизор с биокамином напротив.
дизайн кухни симферополь
ГОСТИНАЯ И КУХНЯ-СТОЛОВАЯ

Площадь этих двух смежных помещений впечатляющая - 33 м2.
При входе расположена Г-образная кухня с островом. В острове техники нет, с одной стороны шкафы для хранения, с другой - барная стойка. В столешницу острова интегрированы розетки.
Ближе к окнам разместили столовую зону на восемь персон, с телевизором.
Зона гостиной выглядит особенно приватно и уютно за счет перегородки, отделяющей пространство кухни. Здесь диван длиной 3.7 м., и телевизор с биокамином напротив.
Как мы реализовали
(сдвинь влево)
Как было задумано
(сдвинь вправо)

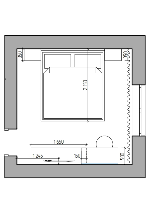
ГОСТЕВАЯ СПАЛЬНЯ ПЕРВОГО ЭТАЖА

Это небольшая комната, всего 12 м2, и тем не менее здесь есть все необходимое, чтобы гости смогли с комфортом переночевать. Полноценный шкаф не предусмотрен, но есть двойная подвесная тумба, длиной суммарно почти 2,5 метра, где поместится все нужное.

дизайн бюро симферополь
ГОСТЕВАЯ СПАЛЬНЯ ПЕРВОГО ЭТАЖА

Это небольшая комната, всего 12 м2, и тем не менее здесь есть все необходимое, чтобы гости смогли с комфортом переночевать. Полноценный шкаф не предусмотрен, но есть двойная подвесная тумба, длиной суммарно почти 2,5 метра, где поместится все нужное.
Как мы реализовали
(сдвинь влево)
Как было задумано
(сдвинь вправо)

САНУЗЕЛ ПЕРВОГО ЭТАЖА

Здесь есть одно особенно удачное решение: простанство, в которое зашита инсталляция унитаза, продлено в душевой блок, и в нем смонтированы встроенные полочки из керамогранита.
В этом же помещении расположен стиральная и сушильная машина. Место позволяет поставить их не одну на другую, а рядом. Над ними добавили столешницу из акрилового камня - очень удобное решение для хозяйки.

ремонт и отделка
САНУЗЕЛ ПЕРВОГО ЭТАЖА

Здесь есть одно особенно удачное решение: простанство, в которое зашита инсталляция унитаза, продлено в душевой блок, и в нем смонтированы встроенные полочки из керамогранита.
В этом же помещении расположен стиральная и сушильная машина. Место позволяет поставить их не одну на другую, а рядом. Над ними добавили столешницу из акрилового камня - очень удобное решение для хозяйки.
Как мы реализовали
(сдвинь влево)
Как было задумано
(сдвинь вправо)

ПРИХОЖАЯ И ХОЛЛ ПЕРВОГО ЭТАЖА

Изюминка и акцент этого интерьера - лестница. Обратите внимание, как выгодно между собой сочетаются материалы. Подступенок выполнен из того же керамогранита, что и полы кухни, а проступь - деревянная. За счет этого лестничный марш не выглядит чужеродным элементом, а гармонично вписывается в пространство.

комплексный ремонт под ключ
ПРИХОЖАЯ И ХОЛЛ ПЕРВОГО ЭТАЖА

Изюминка и акцент этого интерьера - лестница. Обратите внимание, как выгодно между собой сочетаются материалы. Подступенок выполнен из того же керамогранита, что и полы кухни, а проступь - деревянная. За счет этого лестничный марш не выглядит чужеродным элементом, а гармонично вписывается в пространство.
Как мы реализовали
(сдвинь влево)
Как было задумано
(сдвинь вправо)
Павел Савицкий
Основатель компании Домоэтика
"Дизайн будущего - это не объекты, а процессы. Не служение вещам, а радость повседневной жизни. Нет понятия "хорошего" и "плохого" интерьера, важно только, где нравится находиться именно вам."
Павел Савицкий
Основатель компании Домоэтика
"Дизайн будущего - это не объекты, а процессы. Не служение вещам, а радость повседневной жизни. Нет понятия "хорошего" и "плохого" интерьера, важно только, где нравится находиться именно вам."
Как вам этот проект?
Хотите жить в доме вашей мечты?
Таком, как видите его именно вы: красивом, комфортном, уникальном?
У нас больше 500 реализованных проектов по ремонту,
и мы уверены, что можем создать для вас тот самый вариант.
Давайте познакомимся и обсудим ваш проект
Нажимая на кнопку, вы даете согласие на обработку своих персональных данных и соглашаетесь с политикой конфиденциальности
Другие примеры наших работ